Skip to content

Mixed-Use Property – 7,158 Square Feet in Miami, FL – Unique Corner Location with Parking and Automotive Zoning

Commercial Lease

Category: Mixed-Use

Price:$36

Location: Miami, FL

Year Built: 1950

Days on Market: 64

Description:

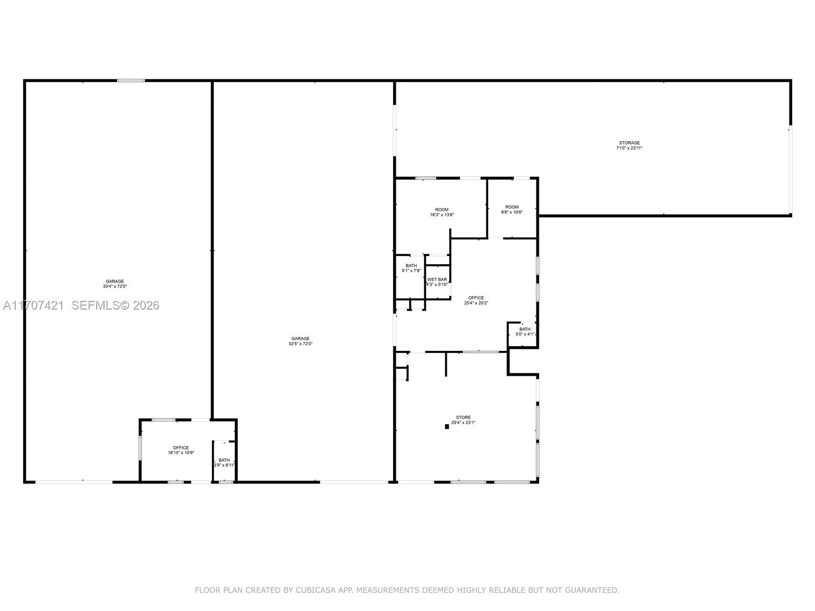
Unique corner property facing NW South River Drive in the Palmer Lake district. According to tax roll 7,158 square feet that includes a retail and office space and two warehouses that can be converted into one, additional storage space and 3 bathrooms . Hard to find parking space available in front of the building, zoned for automotive/marine use , excellent location near the airport, car rental companies and one of Amazon's warehouses.

Unique corner property facing NW South River Drive with according to tax roll 7,158 square feet that includes a retail & office space and 2 warehouses

Listing Code: 1097604194